This exceptional 4-sided brick home is nestled on a peaceful and private ±1.2-acre lot in one of Atlanta’s most desirable neighborhoods. Much larger than it looks with the primary suite on main, secondary bedrooms upstairs, and a finished basement. Enjoy beautiful views of the expansive backyard and a relaxing screened-in porch and deck —seamlessly blending indoor and outdoor living.
The updated kitchen is both stylish and functional, featuring stainless steel appliances, a chef’s 6-burner stove with griddle, granite countertops, a warming drawer, double ovens, spacious island, and eat-in area that overlooks the backyard and walks out to the deck and grilling area. An adjacent butler’s pantry with a wine fridge adds convenience and extra storage.
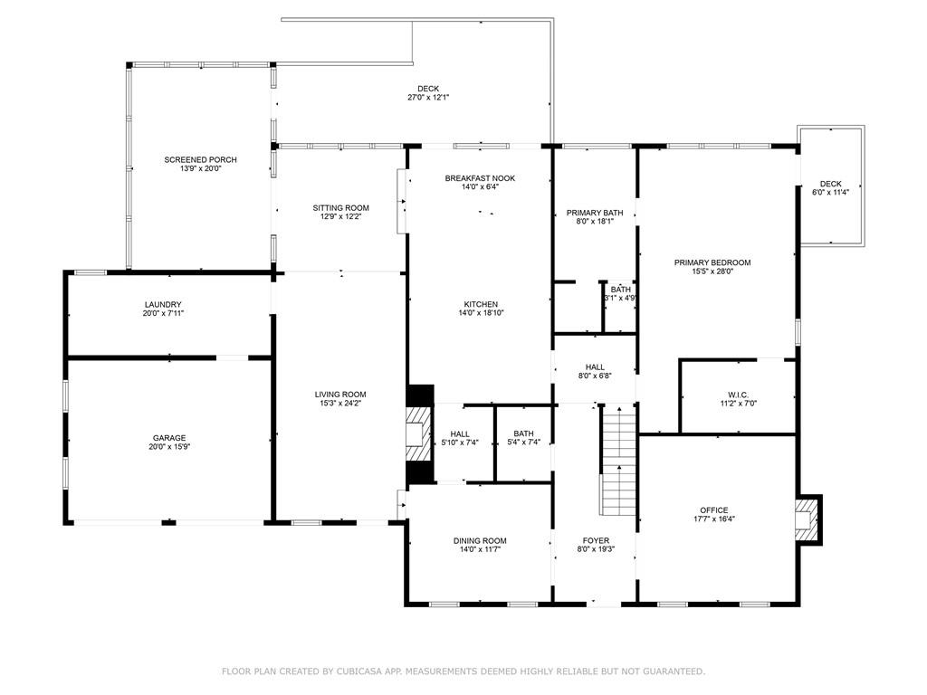
The main-level primary suite is privately located at the rear of the home and features a luxurious bath with a soaking tub, dual vanities, separate shower, generous walk-in closet, and its own private balcony.
Designed for comfort and functionality, the home offers multiple living spaces including a main-level den/living room, family room, and sunroom and the convenience of main level laundry and attached garage. The beautifully finished basement offers flexible space for movie nights, exercising, and game day fun complete with a kitchenette and walk-out to the backyard —providing a thoughtful layout with plenty of room to live and entertain.
The light-filled breakfast room opens into the sunroom and family rooms, where exposed beam ceilings, a fireplace, and custom built-ins create a warm and inviting atmosphere. A huge screened-in back porch with dining table and family room atmosphere adjoins the back deck, further extending the living space overlooking the private professionally landscaped grounds, with a cozy firepit, and room for a pool.
Located on a quiet dead-end street with friendly neighbors. An easy walk less than a mile to Chastain Park with access to the golf course, pool and swim team, The Chastain restaurant, and equestrian facilities. Also, close to many of Atlanta’s top private schools and located in the award-winning Jackson Elementary School district. This well maintained home has newer windows, roof, and HVAC, and is ready for you to move in and enjoy!
The updated kitchen is both stylish and functional, featuring stainless steel appliances, a chef’s 6-burner stove with griddle, granite countertops, a warming drawer, double ovens, spacious island, and eat-in area that overlooks the backyard and walks out to the deck and grilling area. An adjacent butler’s pantry with a wine fridge adds convenience and extra storage.
The main-level primary suite is privately located at the rear of the home and features a luxurious bath with a soaking tub, dual vanities, separate shower, generous walk-in closet, and its own private balcony.
Designed for comfort and functionality, the home offers multiple living spaces including a main-level den/living room, family room, and sunroom and the convenience of main level laundry and attached garage. The beautifully finished basement offers flexible space for movie nights, exercising, and game day fun complete with a kitchenette and walk-out to the backyard —providing a thoughtful layout with plenty of room to live and entertain.
The light-filled breakfast room opens into the sunroom and family rooms, where exposed beam ceilings, a fireplace, and custom built-ins create a warm and inviting atmosphere. A huge screened-in back porch with dining table and family room atmosphere adjoins the back deck, further extending the living space overlooking the private professionally landscaped grounds, with a cozy firepit, and room for a pool.
Located on a quiet dead-end street with friendly neighbors. An easy walk less than a mile to Chastain Park with access to the golf course, pool and swim team, The Chastain restaurant, and equestrian facilities. Also, close to many of Atlanta’s top private schools and located in the award-winning Jackson Elementary School district. This well maintained home has newer windows, roof, and HVAC, and is ready for you to move in and enjoy!
Property Details
Price:
$1,850,000
MLS #:
7659808
Status:
Active
Beds:
4
Baths:
5
Type:
Single Family
Subtype:
Single Family Residence
Subdivision:
Chastain Park
Listed Date:
Oct 2, 2025
Total Sq Ft:
4,790
Year Built:
1965
See this Listing
Schools
Elementary School:
Jackson – Atlanta
Middle School:
Willis A. Sutton
High School:
North Atlanta
Interior
Appliances
Dishwasher, Disposal, Double Oven, Gas Range, Gas Water Heater, Microwave, Range Hood, Refrigerator
Bathrooms
3 Full Bathrooms, 2 Half Bathrooms
Cooling
Central Air
Fireplaces Total
2
Flooring
Hardwood, Tile
Heating
Central, Forced Air, Natural Gas
Laundry Features
Laundry Room, Main Level, Mud Room, Sink
Exterior
Architectural Style
Traditional
Community Features
Near Schools, Near Shopping, Park, Playground, Street Lights
Construction Materials
Brick, Cement Siding
Exterior Features
Private Yard
Other Structures
Shed(s), Other
Parking Features
Attached, Garage
Roof
Composition
Security Features
Security System Owned, Smoke Detector(s)
Financial
Tax Year
2024
Taxes
$19,614
Map
Community
- Address4220 Exeter Close NW Atlanta GA
- SubdivisionChastain Park
- CityAtlanta
- CountyFulton – GA
- Zip Code30327
Subdivisions in Atlanta
- -Chastain Park Condominium
- .
- .Eclipse
- 1010 Midtown
- 1016 Lofts
- 1065 Midtown Loews
- 1070 Dill Ave
- 1121 Allene
- 1200 Ponce Condominiums
- 1204 On The Park
- 123 Luckie
- 1280 West
- 1280 West Condo
- 1280 West Condominium
- 1280 West Condominiums
- 131 Ponce
- 1401 West Paces
- 1421 Peachtree
- 16th Street
- 17th Street Lofts
- 18 Peachtree Avenue
- 1824 Defoor
- 1824 Defoor Westside
- 1871 Hollywood
- 199 12th St
- 215 Arizona
- 2500 Peachtree
- 2632 Peachtree
- 2828 PEACHTREE
- 28th At Brookwood
- 2901 Lenox
- 2901 Lenox Condominium
- 325 Paces
- 330 McGill Place
- 3400 Malone Condominium
- 3400 MALONE DRIVE
- 3655 PEACHTREE CONDO
- 3655 Peachtree Condominium
- 3660 Peachtree
- 3700 Peachtree
- 375 06 Street
- 40 West 12th
- 40 West 12th Street
- 411 10TH STREET COMMONS TOWNHOMES
- 415 Stacks
- 425 Lindbergh Condominiums
- 430 Lindbergh
- 505 Courtland
- 525 Park
- 55 Delmont
- 568 West
- 5th & Peidmont
- 745 Monroe Drive Condominiums
- 77 12th
- 771 Lindbergh
- 788 West
- 788 West Midtown
- 788 West Midtown Condos
- 799 Barnett Virginia Highlands
- 7th Midtown
- 805 Peachtree
- 870 Inman
- 903 Peachtree
- 905 Condo
- 905 Juniper
- 905 Juniper Condo
- 91 Rumson
- 92 West Paces
- 935M
- A P Wright Prop
- A&P Lofts
- Ab Suttkles Prop
- Abbington at Wildwood
- Aborgate
- Above The Four Seasons
- Academy Heights
- Adair Park
- Adams Crossing
- ADAMS PARK
- Adamsville
- Adamsville Heights
- Addison at Cascade
- Addison Cascade Condo
- Akers Mill
- Alberta Terrace
- Albright
- Alderwood on Abernathy
- Alexander Estates
- Alexandria
- Alhambra
- Allenwood
- Allora Eastland
- Almond Park
- ALSTON PLACE
- Altus At The Quarter
- Alva S Almands
- Alvin L Cooksey
- Amberglades
- Amberwood
- Amherts Downs – GA
- Amhurst
- AMLI Lindbergh
- Amli Old 4th Ward
- Amli Ponce Park
- Amli Westside
- Anatole
- Anatole Sub
- Angier Townhomes
- Annie M Mcdaniel Est
- Ansley Above the Park
- Ansley Arms
- Ansley House
- Ansley North
- Ansley Park
- Ansley Park Annex
- Ansley Parkside
- Ansley Terrace
- Aqua
- Aramore
- Arborgate
- Arbors at City Heights
- Arbors At Lenox Park
- Arbors at Sandy Springs
- Ardmore Park
- Ardmore Sheryl
- Ardmore Square
- Ardmore-Sheryl Condos
- Aria
- Aria West
- Arium Lenox Park
- Arizona Lofts
- Arizona Lofts 2
- Arizona Lofts AZ2
- Arlington
- Arlington Estates
- Arlington Park
- Arlington Park Place
- Arlo Modern
- Arrow Heights
- Art Foundry
- ART/FOUNDRT/ATLANTIC COM
- Arya Peachtree
- ASA G Candler Property
- Ascent Midtown
- Ascent Peachtree
- Ashford Chase
- Ashford Creek
- Ashford Park
- Ashley Downs
- Ashton Trace
- Ashview
- Ashview Heights
- Ashwood
- Ashwood Glen
- Aspen Woods
- Aster Buckhead
- AT LOFTS
- Atkins Park
- Atlanta
- Atlanta Eastside/Grant Park
- Atlanta Perry Bolton Tad
- Atlanta University
- Atlanta University Center
- Atlanta-Fulton
- Atlantic
- Atlantic 17th
- ATLANTIC 17TH CONDO
- Atlantic Briarcliff
- Atlantic Brookhaven
- Atlantic Buckhead
- Atlantic House
- Atlantic Loring Heights
- Atlantic North Highland
- Atlantic Stacks
- Atlantic Station
- Atlantic Station/Home Park
- Audubon Forest
- Augustus Potter
- Autumn Chace
- AUTUMN PARK
- Avalon Townhomes
- Avalon Twnhms
- Avana on Main
- Aven Chastain
- Avenue @ Oakland City
- Avery Park
- Aviary
- Aviary Park
- Avista Condominium
- Avista Condominum
- Axis
- AZ2 Lofts
- Bailey Estates
- Baker Clark A
- Baker Hills
- Baker Ridge
- Baker////////////hill
- Bakers Ferry Frst Sub Un Three
- Ball Creek
- Bankhead
- Barcelona
- Barge Estate
- Barksdale
- BARRINGTON HILLS
- Barrington Trace
- Battleview
- Baywood
- Baywood Hts Sub Un II
- BB Seagraves Estate Property
- Beachland Forest
- Beaver Creek
- Beckham Place at Morningside
- BEDFORD ESTATE
- Bedford Estates
- BEECHER COURT
- Beecher Hill
- Beecher Hills
- Bellamy Executive Park
- Belleau Woods
- Belmonte Hills
- Belvedere on Peachtree
- Ben Hill Acres
- Ben Hill Heights
- Ben Hill Highland
- Ben Hill Highlands
- Ben Hill Hinds
- Ben Hill Hlnd
- Ben Hill Pines
- Ben Hill Terrace
- BENCAL
- Bench Mark
- Benteen Park
- Benteen Reserve
- Berkeley Oaks
- Berkeley Park
- Berkley Park
- Berkshire
- Berry Heights
- Beverly Hills
- Big Builder
- Biltmore Acres
- BILTMORE HOUSE
- Block Lofts
- Blue Heron Walk
- Blue Ridge Condominiums
- Blue Ridge Highlands
- Blue Ridge-Highlands Condo
- Bluffton/Lenox
- Bolfair
- Bolfair Hills
- Bolfair Hills Sec 2
- Bolton
- Bolton Hills
- Bon Haven Estates
- Bonnie View
- Bonnybrook Estates
- Boulder Park
- Boulder Park/Adamsville
- Boulder Walk
- Bouldercrest Acres
- BOULDERCREST ACRES SEC 01
- Bouldercrest Acres Sub
- Bouldercrest Acres Subdivision
- Bouldercrest Inc
- boulevard at Sandy Springs
- Boulevard Heights
- Boulevard Heights/Grant Park
- Bradford Square Condominium
- BRADFORD/PEACHTREE
- Bradley House
- Braeburn Heights
- Brandon
- Brandon Mill Farms
- Brandon Mill Woods
- Brantley Walk
- Breakwater
- Breckenridge
- BRENTWOOD
- Brentwood Section 02
- Brian Wood Acres
- Briar Cove
- Briar Creek
- Briar Glen
- Briar Hills
- Briarcliff Heights
- Briarcliff Normandy
- Briarcliff Woods
- Briarcliff Woods East
- Briarcrest
- Briarhills
- Briaridge
- Briarlake
- Briarmoor Manor
- Briarwood Field
- Briarwood Hills
- Brickell Square
- Briers North
- Brighton Court
- Brighton Village
- Bristol At Briarcliff
- Britney Forest
- Brittany Park
- Broad Acres
- Broadlands
- Broadstone
- Broadstone 2Thirty
- Broadstone Pullman
- Broadview Place
- Broadview Place Townhouse
- Brookdale Park
- Brooke
- Brooke Farm
- Brooke Ridge
- Brookford Lane
- Brookhaven
- Brookhaven Chase
- Brookhaven Fields
- Brookhaven Garden
- Brookhaven Heights
- Brookhaven Manor
- Brookhaven Studios
- Brookhaven Township
- Brookhaven Village
- Brookhaven/Lanier Manor
- Brookwood
- Brookwood Forest
- Brookwood Heights at Ardmore
- Brookwood Hills
- BROOKWOOD PARK
- Brookwood Place
- Browns Mill
- Browns Mill Park
- Browns Mill Rd
- BROWNS MILL WALK
- Brownsmill Park
- Brownstones At Central Park
- Brownstones At Cosmopolitan
- Brownstones at Habersham
- Brushworks Lofts
- Bryant at Buckhead Village
- Bryanwood Manor
- Buckhead
- Buckhead 960
- Buckhead Forest
- Buckhead Forrest
- Buckhead Grand
- Buckhead Grand Condominium
- Buckhead Grand Condominiums
- Buckhead North Townhomes
- Buckhead Park at Lenox
- buckhead square
- Buckhead Valley
- Buckhead Village
- Buckhead Village Forest
- Buckhead Village Lofts
- Buckhead/Brookhaven
- Buckhead/Paces
- Buckhead/Tuxedo Park
- Buckley
- Buckley Townhome
- Buela B Williams Prop
- Buildercrest Acres 06
- Burdett Rdg 06
- Burdett Ridge
- Burnett Grant Park
- Bush Mountain
- Bush Mountain Manor
- C O CONNALLUS PROP
- C R Morris Property
- Cabaggetown
- Cabbagetown
- Cabbagetown / Grant Park
- Cabbagetown/Beltline Overlay
- Caine & Wallace
- CAMBRIDGE
- Cambridge Commons
- Cambridge Estates
- Cambridge Meadows
- Camden Buckhead
- Camelot
- Camelot club
- Cameron Glen
- Camp Creek Village
- Camp Creek Village Townhomes
- Campbell Wallace Jr.
- Canaan Ridge at Wolf Creek
- Candle Park
- Candler
- Candler Park
- Candler Parkside
- Candler Walk
- Canterbury Forest
- CAPELLA
- Capital View
- Capital View Manor
- Capitol 8 Condos
- Capitol City Square
- Capitol City Square Condos
- Capitol Gateway
- Capitol View
- Capitol View Manor
- Captiol View Manor
- Carey Park
- Carey Prop
- Carlsyle Heights
- Carlyle Heights
- Carlyle Park
- Carlyle Square
- Carlyle Woods
- Carlyle Woods Condominium
- Caroline Street Lofts
- Carramore Landing
- Carriage Gate
- CARRIAGE HILL
- CARRIE ELLIOTT MRS ESTATE
- Carrington Park
- Carrington PLace
- Carroll Heights
- Carver Hills
- Casa Bella
- CASCADE
- CASCADE COMMONS
- Cascade Cove
- Cascade Cove Townhomes
- Cascade Green
- Cascade Heights
- Cascade Hills
- Cascade Knoll
- Cascade Manor
- Cascade Parc
- Cascade Place
- Cascade Preserve
- Cascade Ridge at Niskey Lake
- Cascades
- Cascades by Centex
- Castile Cove
- Castile Cove /Summerglenn
- Castleberry Hill
- Castleberry Point
- Castleberry Point Lofts
- Castlewood
- Castlewood Estates
- Catherine Patterson Huff Prop
- Cavilier Gardens
- CC Moore
- Cedar Chase
- Cenntennial Park West
- CENTENNIAL HOUSE
- Centennial Park North
- Centennial Park West
- Centennial Station
- Center Ave
- Center Heights
- Center Hill
- Center Hill/Grove Park
- Center Park
- Centra Villa
- Central Buckhead
- Central City Condominiums
- CENTRAL PARK LOFTS
- Central Villa
- Chadsworth
- Chamblee Downtown
- Champions Park
- Champions Park II
- Channing Valley
- Chaparral Estates
- Chapel Hill of Vinings
- Chapparal Estates
- Charles D Turner
- Charles G Turner
- Charleston Pointe
- Charleston Square
- Charleston Square Condo
- Chastain
- Chastain / North Buckhead
- CHASTAIN PARK
- Chateau at Dunwoody
- Chattahoochee Bluffs
- Chattahoochee Chase
- Chattahoochee Run
- Chattahoochee Terrace
- Chattahoochee Trail
- Chelsea Westside
- Cherry Hills
- Cherry Hills Center
- Cheshire Place
- Cheshire Place II
- Chestnut Creek
- Chestnut Forest
- chestnut landing
- Chestnut Place
- Chosewood
- Chosewood Park
- Christine Creek
- Chrysler Manor
- CITY HEIGHTS
- City of Atlanta
- City Park Townhomes
- City Side Lofts Condo
- City Space Lofts
- City View Lofts
- CITY VIEW PARK
- Cityscape
- Cityside Lofts
- Clairebrooke
- Clairmont Hills
- Clairmont Terrace
- Clairmont Terrace Condominiums
- Clara Meer
- CLARKE UNIVERSITY PROP
- Clayburne Place
- Clermont Terrace
- Clifton Downs
- Clifton Heights Revision 01
- Cliftondale
- Cliftondale/Parklandwoods
- Cloverdale
- Clyde Clay
- Cobblestone at Brookhaven
- Cochise By The River
- Cofield Park
- Collection at East Lake
- Collection at Perimeter Park
- Collection/East Lake
- Collective Upper West Side
- College Heights
- College Park
- College Park Estates
- Collier Greem
- Collier Green
- COLLIER GREEN CONDO
- Collier Green Condominiums
- Collier Heights
- COLLIER HILLS
- Collier House
- Collier Pointe
- Collwood
- Colonial Hills
- Colony House
- Colony Park
- Colony Park Citihomes II
- Colony Square
- Community
- Complex
- Compton Heights
- Concord Manor
- Concorde
- CONLEY HILLS
- Conlley Hills
- CONNALLY ESTATES
- Connally Grove
- Connally Manor
- Connelly
- Connemara
- Continental Colony
- Continental Land Co Prop
- Contra Villa
- Cooks Crossing
- Cooks Landing
- Copperleaf At Global Forum
- Copperloaf/Global Forum
- Cordy Place
- Cornerstone Village
- Cortland Peachtree Battle
- Cosmopolitan
- Cosmopolitan at Lindbergh
- Cosmopolitan on Lindbergh
- Cottages of Carey Park
- Cottages/Hubbard
- Cotting Court
- Country Club Estates
- County Line Estates
- Courtyards of Vinings
- Cravey
- Creek View at Lenox
- Creekside
- Creekview
- Creel Walk
- Crenshaw Park
- Crescendo Valley
- Crescendo Vly Sub Sec 1
- Crestridge
- Crestwicke
- Crestwood
- CRESTWOOD CONDOS
- Crestwood Forest
- Crosby
- Crosby Hills
- Cross Creek
- Cross Roads Manor
- Crown Candy Lofts
- Crown Park
- Crystal Cove
- Crystal Lake
- Cumberland Forest
- D & L Realty Co Prop
- D’Youville
- Dalston
- Danbury Parc
- Daniel Acres
- Datona Estates
- David T Nicholes
- Deans Village / Summerhill
- Dearborn Park
- Deere Lofts
- Deerfield
- Deerwood
- Deerwood Reserve
- Defoors Landing NW
- Defoors Mill
- Defoors Place
- Dekalb Highlands
- Delane Court Condominiums
- Delmar Park
- Delmont
- Delmoor Estates
- Delowe Park
- Derby Hills
- DERBY HILLS SEC 02
- Devereaux Commons
- DEVONSHIRE
- Devonwood
- Dillion Park
- Dillon Park
- DILLON PARK SUBDIV
- District Lofts
- Dixie
- Dixie Hills
- Dixie Hils
- Dixie Pines
- Dixy hills
- Dodson Hills
- Dodson Manor
- Dodson Terrace
- Dogwood Estates
- Dogwood Hills
- Donald K Griffith Prop
- Doral Estates
- Douglas Terrace
- Downing Park
- Downtown College Park
- Dreamscape On Fairfield
- Dresden
- Dresden Creek
- Dresden Heights
- Dresden Manor
- Dresden Square
- Drew Valley
- DRUID FOREST
- Druid Hills
- Dunhill
- Dunhill Condos
- Dunhill Ph 02
- Dunnington
- Dunwoody
- Dunwoody Chace
- Dunwoody Close
- Dunwoody Club
- Dunwoody Club Forest
- Dunwoody Court
- Dunwoody East
- Dunwoody Forest
- Dunwoody Green
- Dunwoody Heritage
- Dunwoody Highlands
- Dunwoody Lakes
- Dunwoody Lakes Condo
- Dunwoody North
- Dunwoody Plantation
- Dunwoody Row
- Dunwoody Springs
- Dunwoody Square Townhomes
- DUNWOODY TOWNESHIP
- DUO
- DUO Lofts
- DuPont Commons
- Dynamic Metal Lofts
- E M Elliot Prop
- E S Landrum Propety
- Eagles Grove
- East Atlanta
- East Atlanta / Bouldercrest Acres
- East Atlanta Motavallo Estates
- East Atlanta Village
- East Lake
- East Lake Estates
- East Lake Heights
- East Lake Terrace
- East Lake/Buena Vista
- East Point
- East Point City
- East Point Co
- EASTLAND GATES
- Eastman Park
- Easton
- Eastside Parc
- Eastside Walk
- EastWood
- Eastwood Manor
- Echo Hills
- Echo Lake
- Eclipse
- Eclipse Buckhead
- Eclipse Residential Condominium
- Eco Lofts
- Edgewood
- Edgewood Square
- Edgewood/Finley St Cottages
- Edmondson Brothers
- Edwards
- Eg Hubbard
- Egan Park
- Egan Park Historic College Park
- Egan Park Sub
- Elan Madison Yards
- Elden Galleria
- Eldenwilde
- Element
- Element Condominium
- Elizabeth Heights
- Elizabeth Sprink Prop
- Ell Square
- Elle of Buckhead
- Elmco Estates
- Elmwood Estates
- Eloise at Grant Park
- Elysian Estates
- Elysian Point
- Embry Hills
- Emerald Lake
- Emerson On Krog
- Emory Area
- Emory Grove
- Emory Highlands
- Emory Row Condo
- Emory/Druid Hills
- Empire Rental Living at Metro
- Empire State Invest
- Enclave At Briarcliff
- Enclave at Druid Hills
- Enclave at Peachtree Memorial
- Enclave at Renaissance
- Enclave Grant Park
- Enclave Renaissance
- ENCLAVE/RENAISSANCE
- English Ave
- English Ave Area
- English Avenue
- Enon
- ENON PINES
- Enso
- ERIC A DAVIS
- Erskine Park
- ES Landrum Prop
- Esha Court
- Essex House
- Estates of Mount Paran
- Evans Ridge
- Evergreen Hills
- Evermay
- Evian
- Executive Parkview
- Ezra Church
- Ezra Church Heights
- F W Benteen
- F.P. Phillips
- Factory Lofts
- Fair & Walker Lofts
- Fair And Walker Lofts
- Fairbun Heights
- Fairburn Heights
- Fairburn Landing North
- Fairfield Heights
- Fairfield Square
- Fairfield Terrace Incorporated
- Fairlane Heights
- Fairlane Heights Browning
- Fairmont Forest
- Fairview Terrace
- Fairview Terrace Incorporated
- Fairway Acres
- Fairwood Estate
- Falls at Camp Creek
- FALLS AT CASCADE PALMS
- Falls Cascade Palms
- Fama Heights
- Farmhouses At Ormewood
- Farmhouses At Ormewood Park
- Farrington Midtown
- Feldwood Pines
- Fenimore
- Fernwood Park
- Fifteen
- Fifteen Condominium
- Finley St Cottages
- Fitzhugh Knox
- Flair Forest
- Flat Shoals Area
- Flat Shoals Manor
- FLATS AT RIVERWALK
- Florida Heights
- Floriday Heights
- Flowers
- Flowers Park
- Forest Acres
- Forest at Huntcliff
- Forest Creek
- Forest Downs
- Forest Hill Park
- Forest Hills
- Forest Hills Park
- Forest Park
- Forest Valley
- Forest Vly
- Forrest Creek
- Fortified
- Four Oaks
- Four Seasons
- Four15 Stacks
- Foxcroft
- FOXWOOD
- Fp Phillips Properties
- FREEDOM LOFTS
- Freedom Townhomes
- Frog Hollow
- FRONTIER WOODS
- Fulton
- Fulton County
- G H Broadnax Proeprty
- Gainsborough
- Gallery
- Gant Park
- Garden Brook
- Garden Court
- Garden Hills
- Garden Hills/Peachtree Heights
- Gasket City Loft
- Gasket City Lofts
- Gates At Bouldercrest
- GE Lofts
- Gene Terrell
- Generation
- Gentry
- George Muse Estate Prop
- Georgetown
- Georgetown Atlanta
- Georgetown of Atlanta
- Georgia Security&Banking Co
- Georgian Manor
- Giant Lofts
- Gilbert X Cheves
- Gilpatrick
- GLEN AT CASCADE
- Glen at Cascading Palms
- Glen Errol
- Glen Iris Lofts
- Glen@Cascading the Palms
- Glencastle Estates
- GLENLOCKE GROVE PH 02
- Glenridge Close
- Glenridge Court
- Glenridge Creek
- Glenridge Forest
- Glenridge Park
- Glenridge Place
- Glenridge Pointe
- Glenrose
- Glenrose Heights
- GLENVIEW
- GLENWOOD
- Glenwood Green
- Glenwood Park
- Golden Acres
- Gordon Hills
- Gordon Park
- Gramercy Park
- Grandview
- Grant Estates
- Grant Park
- Grant Park / South Atlanta
- Grant Place
- Granville
- Grasmere
- Graydon Buckhead
- Green Froest Acres
- Green Hill
- Green Hills
- GREENBRIAR
- Greenbriar Acres
- Greenbriar Townhomes
- Greenbriar Twnhms Sub
- Greenlea Commons
- Greenly Commons at Heritage Park
- GREENWOOD CONDO
- Gresham Manor
- Gresham Park
- Greystone at Vinings
- Greystone Condominium
- Greystone North
- Grinnell Lofts
- GROGANS BLUFF PH III-A
- Grosvenor
- Grove Park
- Grove Park/ Bankhead
- Grove Park/West Highlands
- Guilford Forest
- Guilford Village
- Guilfordd Village
- Gustave Kagealmacher Estate
- H E Morgan
- Habersham
- Habersham Buckhead
- HABERSHAM EST CONDO
- Habersham Estate
- Habersham Estates
- Habersham Oaks
- Habersham of Buckhead
- Habersham Place
- Hacienda
- Hall Prop
- Hall Prop Subdivision
- Hallie Hills
- Hallis Hills
- Halten Hall
- Ham and Williams
- Hammond Heights
- Hammond Hills
- Hammond Park
- HAMPSHIRE PARK
- Hampton Park
- Hampton Way
- Hanover Buckhead Village
- Hanover House
- Hanover West
- Haper and Weathers
- Hapeville
- HAPPY HOMES
- Hardee Station/Edgewood
- HARDEMAN PROPERTY
- Hardin Ridge
- Hardman Ct
- Harmonh Heights
- Harper & Weathers Sub
- Harper on Piedmont
- Harris Manor
- Harrowood
- Harts Mill
- Harts Place
- Harwell Heights
- HARWOOD
- Harwood condos
- Hastings Seeds Lofts
- Hasty B A
- Haven on Briarwood
- Haven/Lakeside Preserve
- Hawthorne Park
- Hawthorne Station
- Haynes Manor
- HE Morgan
- Headland Heights
- HealDev
- Healey
- Healey Building
- Healey Condo
- Heatherbrooke
- Heathwood
- Heathwood Court
- Heights at Dunwoody
- Heights at Grant Park
- Heights at Shadowood
- Heights Manor
- Hemphill School
- Henderson Hills
- Henderson Mill
- Henderson Park
- Henderson Park Condiminium
- Henderson Reserve
- Henderson Walk
- Heritage Legacy Enclave
- Heritage Oaks
- Heritage on Memorial
- Heritage Park
- Heritage Place
- Heritage Pointe
- Heritage Pointe Townhomes
- Heritage Valley
- Hermer Circle
- Heroer & Weathers
- Hidden Brook
- Hideaway Acres
- High Gate
- High Grove
- High Park
- High Point
- High Point Estate
- High Point Estates
- High Point Place
- Highgate At Sandy Springs
- Highgate at SandySprings
- Highgrove
- Highgrove Court
- Highland
- Highland Hall
- Highland Lake
- Highland Park
- Highland South
- Highlands
- Highlands at Akers Mill
- Highlands of Sandy Springs
- HIGHPOINT ESTATES
- Highpoint,North Buckhead, Chastain
- Highwood Park
- Highwood Trace
- Highwood Trace Twnhms
- Hilderbrand Prop
- Hill Street Lofts
- Hill Streets Lofts
- Hillandale
- Hillcrest
- Hillendale
- Hillgrove
- Hills Park
- Hillside at Lenox
- Historic Adair Park
- Historic Brookhaven
- Historic Center Park
- Historic College Park
- Historic Grant Park
- Historic Old 4th Ward
- Historic South Atlanta
- Historic South Fulton
- HISTORIC WEST END
- Historic Westside
- Historic Westside Village Townhomes
- Historic Westside Vlg Twnhms P
- Historical Adair Park
- Historical College Park
- Hivue Hills
- Hivue Hills Sub
- Hogan & Cook Sub
- Hollywood & Main
- Hollywood & Main II
- Hollywood and Main
- Hollywood and Main II
- Home Park
- Home Park Atlantic Station
- Horizon
- Howell Estates
- Howell Mill Plantation
- Howell Station
- HT Dobbs and Higgins R Dobbs
- Ht Mcdaniel Estate
- Hudson Sub
- Huff Heights
- Huntcliff
- Hunter Hill
- Hunter HIlls
- Hunter Hills / Washington Park
- Hunter Hills/Grove Park
- HUNTER TERRACE
- Huntington
- Huntington Hall
- Huntley Estates
- Huntley Hills
- Huntley on Park Avenue
- Inglewood Estates
- INMAN GREEN
- Inman Mews
- Inman Motor Works
- Inman Park
- Inman Park Village Lofts
- Inman Quarter
- Inman Station
- INMAN VILLAGE PARKWAY
- Interlock
- ISLEWORTH
- ITP
- Ivey Place on the Park
- Ivy Ridge North Buckhead
- Ivys
- J & J Sub
- J B Alexander
- J B Coursey Estate Prop
- J F Brown Prop
- J R Young Prop Rev
- J S Coursey Estate Prop
- J W Phillips Estate
- J W Thompson Prop
- J.H. Wilson’s
- J5
- Jackson Square
- Jackson Trace
- Jailette Estates
- Jailette Trace
- Jamestown Colony
- Jb Hand
- Jefferson Estates
- Jefferson Heights
- Jefferson Park
- Jett Ferry Manor
- JF Burdett Estate
- Jl Sims Prop
- John Malone
- John S. Owen Sub
- John T. Poole
- Joylan Park
- Joyland
- Joyland Park
- JT Kimbrough subdivision
- Jt Wallace
- Juniper Lofts
- Just Us
- Jw Harris
- Jw Thompson Prop Sub
- K & B Equisition
- Kara-Donna Valley
- KELSO AT PEYTON
- kenmore park
- Kenmore Parks
- Kensington Gates
- Kensington Heights
- Kessler City Lofts
- Keswick Village
- Keys Crossing
- Kidd Harrison Pro
- Kimberly
- Kimberly Crossing
- Kimberly Estates
- king plow
- King’s Grant
- Kingan & Co
- Kings Cliff Lake
- Kings Forest
- Kings Grant
- Kings Grant Sub
- Kingsboro
- Kingsboro Gardens
- Kingsland
- Kingsley
- Kingston
- Kingston Gate
- Kingston Manor
- Kingswood
- Kirkwood
- Kirkwood / Parkview
- Kirkwood School Lofts
- Knight Park Commons
- Knight Walk
- Knights Park
- Knights Park/Howell Station
- Knox Hall
- Krikwood
- L J Hood Prop
- L P GRANT EST
- La Chona Place
- La France Walk
- LAFAYETTE PARK
- Lafayette Square
- Lake Claire
- LAKE CLAIRE LOFTS
- Lake Claire/Candler Park
- Lake Cowart Estate
- Lake Feldwood
- Lake Front Loch Lomond Un
- Lake Island Estates
- Lake Royal PH. 02
- Lakemoore Coloney
- Lakemoore Colony
- Lakeside Preserve
- LAKEVIEW AT DUNWOODY SPRINGS
- Lakewood
- Lakewood Commons
- Lakewood Heights
- LAKEWOOD QUADPLEX
- Lamar Heights
- Lamar Park
- Lampkin Street Cottages
- Lancaster
- Lancelot Woods
- Landmark
- Landmark Condominium
- Larch wood
- Laurel Grove
- Laurel Rdg
- Laurel Ridge
- Laurel Woods
- Laurens Valley/Cascade
- LaVista Acres
- Lavista Cooperative
- Lavista Park
- Lavista Walk
- Le Chafin
- Le Chateau
- Le Chateau Condominium
- Le Grande
- Lees
- Legacy at Cascades
- Legacy at Palmetto Farms
- Legacy Palmetto Farms
- Legacy/Cascading Crk
- Legacy/Thaxton Reserve
- LEGEND OAKS
- Lemons Ridge
- Lenox Greeen
- Lenox Green
- Lenox Heights
- LENOX HEIGHTS CONDO
- Lenox Hill Cottages
- Lenox Villa
- Lenox Villas
- Lewis . Williams Estate
- Lewis W Clyburn
- LEXINGTON CROSSING
- LH Harris Property
- Liberty Heights
- Liberty Park
- Lilli Midtown
- Lincoln Homes
- Lincoln Manor Sub
- Lincoln Park
- Lindbergh
- Lindbergh Martin Manor
- Lindbergh/Buckhead
- Linden Place
- Lindridge
- Lindridge – Martin Manor
- Lindridge Martin Manor
- Lindridge-Martin Manor
- Lindsy on the Park
- Link Apartments Canvas
- Link Apartments Grant Park
- Links
- Linwood Heights
- Little Five Points
- Loch Lomond Estates
- Lockridge Forest
- Lofts at 5300
- Lofts at Belvedere
- Lofts at Centennial Yards South
- Lofts at the Belvedere
- LOFTS AT THE PARK
- Loghaven Heights
- Longleaf
- Longleaf In Vinings
- Longleaf Meadows
- Longreen
- Longview Sub Sec 1
- Look out view
- Lookout at O4W
- Lookout View
- Loring Heights
- Lost Forest
- Louridge Estates
- Lowery
- Lullwater Estate
- Lullwater Parc
- Lumen Grant Park
- Luxe
- Lynfield Acres
- Lynhurst
- Lynhurst Acres
- Lynwood Park
- Lyric Lofts
- M West
- M West II
- M-West
- Mabry Place
- Madeline Manor
- MADISON
- Madison Park
- Madison Park South
- Madison Square
- Madison Square At Dunwoody
- Madison Yards
- Magnolia Estates
- Magnolia Place
- MAGNOLIA SQUARE
- Magnolia Walk
- Magnum Manor
- Main Street Commons
- Majorie Pannell
- Mallory Walk
- Malone & Sample
- Malone & Semple Const Co
- Malone Drive 3400
- Manchester
- Manchester Place
- Manhasset Place
- Manhattan
- Manor at Olde Ivy
- Manor House
- MAP/COLLEGE PARK
- Maple Bend
- Maple Ridge
- Margaret Mitchell
- Marion Bldrs
- Marion Place
- martin estates
- Martin Manor
- Mason Flats
- Matheison Exchange Lofts
- Mathieson
- Mathieson Exchange
- Mathieson Exchange Lofts
- Mayfair Renaissance
- Mayfair Tower
- MAYS MANOR
- MAYSON AVE
- McArthur Estate
- McCallie Boulevard
- McDonough Heights
- Mcgill Park
- Mcgill Place
- Meadowbrook
- Meadowbrook Forest
- Meadowcliff
- MEADOWPARK
- Meadows
- MEADOWVIEW
- mechanicsville
- Mechanicsville21
- Mechanisville
- Mechansville
- Melanie Manor
- Melrose Park
- Memorial Park
- Mendenhall
- Merchansville
- Meridian Buckhead
- METROPOLIS
- Metropolitan
- Metropolitan at Phipps
- Metropolitan, condominium
- Mezzo
- Michael Hagger
- Midcity Lofts
- Midtown
- Midtown Atlanta
- Midtown on 8th
- Midtown Park
- Midtown Square
- Midtown Yorkshire
- Midtown, Old Fourth Ward
- Midway Woods
- Milltown Lofts
- Milton Terrace
- MINE ENTERPRISES INC PROP
- Mira at Midtown Unit
- Mitchell Crossing
- MODA
- Moda Reynoldstown
- Modera Old Ivy
- Modera Reynoldstown
- Modern on Adams
- Monroe Atlanta
- MONROE HEIGHTS
- Monroe Place
- Monticello
- Monticello Park
- Moon Manor
- Mooregate Square
- Moreland Heights
- Moreland Lofts
- Moreland Park
- Moreland Walk
- Morning Creek
- Morning Creek Estates
- Morning Creek Forest
- Morningside
- Morningside – Edmund Park
- Morningside – Lenox Park
- Morningside / Virginia Highland
- Morningside Emory
- Morningside Park
- Morningside Place
- Morningside Terrace
- Morningside Towns
- Morningside-Lenox Park
- Morris Hardwick Schneider & Ro
- Mount Vernon North
- Mount Vernon Plantation
- Mount Vernon Springs
- Mount Vernon Towers
- Mount Vernon Village
- Mount Vernon Woods
- Mount Veronon Hills
- MOUNTAIN MANOR ESTATES
- Mountain Oak Ph 06
- Mountaire
- Mountaire Forest
- Mozley Park
- Mrs Mary E Dodge Prop
- Mrs Sarah Sosby Prop
- Mrs Sarah T Kennerlys Prop Pla
- Mt. Vernon Springs
- Mt. Vernon Towers
- Murphy Candler
- murphy court
- Muse Jones & Orr
- Museum Tower
- Museum Towers
- Musuem Tower
- Myrtle Street Apartments
- Mystic Court
- Mystic Ridge
- N
- Nathan Prop
- Neighborhood
- Nesbit Reserve
- Newcastle
- Newcastle Twnhse Condo
- Newhaven
- Niskey Cove Lake
- Niskey Lake
- Niskey Lake Cove
- Niskey Lake Falls
- No
- Nolyn Pointe
- Nomia
- Non
- None/Poole & Anderson
- Normandy
- Normandy Sec 04
- North Buckhead
- North Buckhead / Loridans
- North Forest
- North Grant Park
- North Hampton
- North Harbor
- North Laventure Forest
- North Ormewood Park
- North Shenandoah
- North Springs
- Northampton
- Northcrest
- Northcrest Villas
- Northlake
- Northlake Condominium
- Northlake Condominiums
- NORTHLAKE CONDOMINUMS
- Northridge
- Northridge Common
- Northridge Crossing
- Northridge Forest
- Northumberland
- Northwest Buckhead
- Northwoods
- Norwood
- Norwood Manor
- Norwood Sub
- Not Shown
- Nottaway
- Notting Hill
- Notting Hill at Arlington
- Notting Hill/Arlington Twnhses
- Novel Midtown Atlanta
- NW Atlanta
- OAK GLADE MANOR
- Oak Grove
- Oak Grove Acres
- Oak Grove Estates
- Oak Hill
- OAK HILL HEIGHTS
- Oak Knoll
- Oak Park
- Oakcliff
- Oakcliff Estates
- Oakdale Estates
- oakfield
- Oakhurst
- Oakhurst East Lake
- Oakland
- Oakland City
- Oakland City / West End
- Oakland Heights
- Oakland Hills
- Oakland Park
- Oakley Commons
- OAKS AT BUCKHEAD
- Oaks at Defoor
- Oaks at Johns Creek
- Oaks of Dunwoody
- OAKS/BUCKHEAD
- Odis Nox
- Old 4th Ward/Poncey Highlands
- Old Atlanta Station
- Old Fairburn Close
- Old Fairburn Village
- Old Forth Ward
- Old Fourth Ward
- Old National East
- Olde Ivey @ Vinings
- Olde Ivy
- Olde Ivy at Vinings
- Olde Ivy Vinings
- Olde Vinings Registry
- Oldfield At Grant Park
- Olive Baptist Ch/East Pt B
- Oliver Street Townhomes
- Olympian Hills
- One Brookhaven
- One Museum Place
- One River Place
- One Riverside West
- One Vinings Mountain
- Orchard Hill
- Orchard Knob
- Orchard Lake
- ORCHARDS HOPEWELL
- Ormewood
- Ormewood Farmhouses
- Ormewood Heights
- Ormewood Park
- Ormewood Park/East Atlanta
- Ormwood Heights
- Oshields & Jackson Prop
- Ovation
- Overlook at Campcreek
- Overlook at Druid Hills
- Overlook at Lake Claire
- Overlook at Lenox
- Overton Rise
- Overture Buckhead South
- Overture Powers Ferry
- Oxford Row at Lake Claire
- Oxley Edgewood
- Oxmoor Estates
- Paces
- Paces 325
- Paces Ferry Heights
- Paces Forest
- PACES MILL
- Paces Neighborhood
- Paces Place
- Paces Ridge at Vinings
- Paces West
- Paintbox
- Palisades Park
- Palladian Manor
- Palmetto Farms
- PALMETTO FARMS PH2
- Paramount at Buckhead
- Parc Vu Condominiums
- Parc Vue
- Parc Vue Midtown
- Park 108
- Park At Ashford
- Park at Browns Mill
- Park at Sandy Springs
- Park At Vinings
- PARK AT VININGS ON THE CHATTAHOOCHEE
- Park Avenue
- PARK AVENUE CONDOMINIUM
- Park Central
- Park Central Condo
- Park City Place
- Park Gate Midtown
- Park Lane
- Park Lane at Peachtree
- Park Lane on Peachtree
- Park Lane/Peachtree Condo
- Park North
- Park Place on Peachtree
- Park Place South
- Park Regency
- Park Row
- Park Tower
- Park Towers
- Park Towers 1
- Park Towers Place
- Park Vly
- Park Vue
- Park/Browns Mill
- Parker Ranch
- Parker Ranch Ext
- Parkhaus
- Parklane
- Parklane of Peachtree
- Parklane on Peachtree
- ParkLane on Peachtree Condominium Associ
- Parkside Walk
- Parkview
- Parkview Estates
- Parkview Homes, Inc.
- Parkview Homesites
- Parkview Townhomes
- PARKVIEW/BOLTON PH I
- Parkview/Kirkwood
- Parkway Villages
- Parkwood
- Parkwood Place
- Parkwood Place Condominium
- Parkwood Place Condos
- Parkwood Plaza Condo
- Part/Ferstwood
- Payton Oaks
- Peachtree Andrews
- Peachtree Battle
- Peachtree Battle Condominium
- Peachtree Battle Condominiums
- Peachtree Commons
- Peachtree Creek Township
- Peachtree Heights
- Peachtree Heights East
- Peachtree Heights Park
- Peachtree Heights West
- Peachtree Highlands
- Peachtree Hills
- Peachtree House
- Peachtree Lofts
- Peachtree Malone
- Peachtree Park
- Peachtree Park Buckhead
- Peachtree Place
- Peachtree Place Condominiums
- Peachtree Road
- PEACHTREE TOWERS
- Peachtree Walk
- Peachtree Walk Condominiums
- Peachvalley Estates
- Pelham Square
- Pendergrast Farm
- Penelope Neighbors
- PENNINGTON PARK
- Penninigton Park Sec 02
- Penninmgton Park
- Peoples Town
- Peoplestown
- Perimeter Summit
- Perkerson
- Perkerson Park
- Perkerson Woods
- Peyton Forest
- Peyton Place Condominiums
- Peyton Village
- Peyton Woods
- Phillips F P
- Phipps Place
- Piedmont & Third
- Piedmont Arbors
- Piedmont Crest
- Piedmont Hall
- Piedmont Heights
- Piedmont House
- Piedmont Pad
- Piedmont Park
- Piedmont Park West
- Piedmont Villas
- Piedmont Villas II
- Pine Acres
- Pine Forest Estates
- Pine Glen
- Pine Hills
- Pine Ridge
- Pine Shoals
- PINE TREE
- PINE TREE CONDOMINIUMS
- Pinecrest Hills
- Pinnacle Point
- Pitsburg
- Pittman Park
- PITTMAN PARK PH 02
- Pittsburg
- Pittsburgh
- Pittsburgh Community
- PLANTATION AT LENOX
- Plaza at 14th Street
- Plaza Midtown
- Plaza Midtwon
- PLAZA TOWERS
- Pleasant Valley Estates
- POD B PRIMROSE/VLGS/EAST POINT
- Pod H/Princeton Lakes Enclave Su
- Pointer Rdg
- POINTER RIDGE
- Polar Rock
- Polar Rock Community
- Pomona Park
- Ponce At Virginia Highlands
- ponce springs
- Ponce Springs Loft
- Ponce Springs Lofts
- Poncey Highland
- Poncey Highlands
- Poncey-Highland
- Poncey-Highlands
- Ponderosa
- Portland Row
- Powell Bellwood
- Powers Cove
- PRAIRIE HEIGHTS
- Pratt Stacks
- Pratt Stacks Condo Bldg 200
- Pratt Stacks/Grant Park
- Prescott at Park Place
- Preserve at Baker’s Ferry
- Preston Hills
- Prestwick Park
- princeton
- Princeton Falls
- Princeton Lake Park
- Princeton Lakes
- Princeton Lakes Regency Pod L
- Princeton Square
- Princeton Village
- Promenade at Northplace
- Promenade Oaks
- Prop Mrs Eliazabeth W Rober
- Property JB Alexander
- Property/G C Ingram
- Property/James V Bryan
- Providence Place
- Pullman Flats
- Pullman Lofts
- Pyramid Assoc Inc
- R L Shorty Dole
- R.L. Eskew
- Radius West Midtown
- Ragsdale Cascade
- Rainbow Acres
- Raleigh Square
- Raleigh Square Condos
- Ramsgate
- Randell Brown
- Randolph Estates
- Randolph Perimeter
- Raoul Estates
- Realm
- REAR
- Rebel Forest
- Rebel Forest Sub
- Redwine Hills
- REGAL PROPERTIES
- Regency
- Regency Hills
- Regency Oaks
- Regency Pines
- Regents Park
- Registry Glen
- Reid House
- Renaissance Lofts
- Renaissance Park
- Renaissance Park II
- RENAISSANCE WALK
- ReNew Chastain
- Reserve at Brookleigh
- Reserve at Crown Pointe Rev
- Reserve at South River
- Reserve at South River Garden
- Reserve at South River Gardens
- Reserve at The Ballpark
- Reserve At Wildwood
- Reserve/Collier Hills #2
- Residences at Chastain
- Retreat at Jones Mill
- Reunion Place
- Reverie On Cumberland
- Reynolds
- REYNOLDS CONDO
- Reynolds Square
- Reynoldstown
- Reynoldstown – Metal Works
- Reynoldstown Square
- RICHARD PARK
- Richland Park
- Richmond Glen
- Ridge View Forest
- Ridgecrest Forest
- Ridgedale
- Ridgedale Park
- Ridgedale Park / Buckhead
- Ridgewood Heights
- Riggins Ridge
- Ritz Carlton Residences
- Ritz-Carlton Residences
- River Bluff
- River Chase
- River Gate
- River House
- River North
- River Par
- River Park
- River Ridge/Rivermont
- River Run
- River Run Condominiums
- River Station
- River Station Twnhms
- River Valley Reserve
- River West
- River. Oaks
- Riverbend
- Rivergate
- Riverline
- Rivers Call
- Rivers Edge at Peachtree Creek
- Rivers Station
- Rivershore Estates
- Riverside
- Riverside Estates
- Riverstone at Wildwood
- Riverwalk at Wildwood
- Rochester
- Rockcliff
- Rolling Ridge
- Ronald A Wallace Prop
- Roosevelt Estates
- Rosedale Heights
- Rosegood
- Rosemont Vinings Ridge
- Rosewood at Southbend
- Rou Royal
- Round Hill
- Roxboro Place
- ROYAL OAKS
- Royal Oaks Manor
- Roycraft
- Ruby Creek Estates
- Rue Royal
- Rumson Road
- Rw Evans Prop
- S W Thompsons Property
- Sable Chase
- Sable Glen
- Sagamore
- Sagamore Hills
- Saint Charles
- Sandtree
- Sandy Springs
- Sandy Springs Cove
- Saratoga Lake
- Sargent Prop
- SAVANNAH RESERVE EAST
- Savannah Square
- Savannah/Washington Park 02
- Saylor at Southside Trail
- Scarborough
- Semmes Park
- Sentinel Ferry
- Sera Townhomes
- SERA TWNHMS
- Serrano
- Seven 88 West Midtown
- Seven Oaks
- Seven88 West Midtown
- Seventh Midtown
- Sexton Woods
- Shady Acres
- Shallowford Heights
- Sheffield Glen
- Shenandoah Valley
- Sherbrooke Forest
- Sheridan
- Sheridan Hills Parc
- Sherwood Forest
- Shoe Factory Lofts
- Sidestreet
- Siena at Renaissance Park
- SIENA/RENAISSANCE PARK
- Sienna Renaissance Park
- Silvstone
- Simpson
- SIMSVILLE
- Simville Land Co Prop A
- Sixteenth St. Townhomes
- Sixty 11th
- Sky Loft
- Sky Loft Condominiums
- Sky Lofts
- Sky Lofts Condo
- Skyland Brookhaven
- Skyland Estates
- Skylar
- SkyLofts
- Skylofts Condo
- Slaton Manor
- Slaton Manor Buckhead
- Slaton Manor Condominium
- Somerset Terrace
- Sophia
- South Atlanta
- South Fork
- South Fulton
- South Park Cottages
- South Park Lofts
- South Pointe
- South Westminster Way
- SOUTHERN ACRES UN A
- Southern Colony
- Southland Heights
- Southtown at Brownsmill Village
- Southwinds
- Southwood Reserve
- SOVEREIGN
- Spain Manor
- Spalding Club Forest
- Spalding Estates
- Spalding Ferry
- Spalding Green
- Spalding Heights
- Spalding Lake
- Spalding Lakes
- Spaldings Woods
- Spaulding Ferry
- Spectrum on Spring
- Spire
- Spring Harbor
- Spring Harbour
- Spring Park
- Spring Walk
- Springdale Gardens
- Springfield
- Springhill
- Springlake
- Springside Manor
- Springside Park
- Springside Sub
- St Andrews
- St Regis
- St. Andrews
- St. James
- Stacks At Fulton Cotton Mill
- STACKS FULTON COTTON MILL LOFTS
- Stadium 65 Residences
- Stanford Court
- Star and Edwards
- Star Metals
- Star Mist
- Starlight Heights
- Starr-Edwards
- State Street School
- STATEWOOD OAKS
- Steelworks
- Stein Steel
- Sterling Creek
- Sterling Creek Condominium
- Sterling Oaks
- Sterling of Dunwoody
- Stewart Hills
- Stillwood
- Stillwood Townhomes
- Stone Gate
- Stone Gate Cottages
- Stone Gate on Lenox
- Stone Manor
- Stonegate
- Stonegate Manor
- Stonehill At Lenox
- Stonepark
- Stonepark Dunwoody
- Stonepark/Dunwoody
- Stonewall
- Stonewall Manor
- Stonewall Station
- Stoney Pointe
- Stonington
- Stonybrook Park
- Storehouse Lofts
- Studio 7
- Studioplex
- SUBDIVISION
- Subdivision/Er Elliott Prop
- Sugar Creek Falls
- Sugar Creek Village
- Sugar Downs
- Summer Brook
- Summer Hill
- Summerhill
- Summerhill | Peoplestown
- Summerhill/Grant Park
- Summit
- Summit at Sandtown
- SUMMIT CONDOS
- Summit Glen
- Summit/Stonewall Tell Road Pod
- Sunnybrook Meadows
- Sunrise at Huntcliff
- Sunset Acres
- Suttles Landing
- Sutton Buckhead
- SW ATL
- SW Atlanta
- Swan Creek
- Swan Terrace
- SWAN TERRACE SUN
- Sweet Auburn
- Swift & Co Lofts
- Swift & Company
- Sylvan Hills
- Sylvan Park
- Sylvan Terrace
- Sylvan Terrace A
- SYLVIAN HILLS
- Sync at Vinings
- Sync at West Midtown
- Talley
- Tanglewood
- Tara Townhomes
- Tara Townhouses
- Tarrymore
- TAYLOR O4W
- Taylor Property
- TBA
- Telfair
- Tell River
- Temple Square
- TEN29 WEST
- Tens on West
- Terminus
- Terraces at Argonne
- Terraces At Glenridge
- Terraces at Peachtree
- Terraces of Dunwoody
- Terraces Of Dunwoody Condo
- Terry Mill
- Terry Mills
- thaxton
- Thaxton Reserve
- The Aberdeen
- The Aramore
- The Arbor at Dunwoody Springs
- The Arbor Of Dunwoody Springs
- The Arbors at Dunwoody Springs
- The Arbors At Lenox Park
- The Arbors at Lenox Point
- The Arbors at Sandy Springs
- The Astoria
- The Atlantic
- The Barclay
- The Barony at Peachtree
- The Barony on Peachtree
- The Battery on Paces Ferry
- THE BENNETT
- The Berkeleys
- The Bixton – East Lake
- The Borghese
- The Boulevard At Sandy Springs
- The Bradford on Peachtree
- The Branches
- The Briary
- The Brookwood
- The Byron on Peachtree
- THE CARLTON
- The Carlyle
- The Cascades
- The Charles
- The Claridges
- The Clifton
- The Cloisers
- The Cloisters
- The Collection At Vinings
- The Concord
- The Concorde
- The Cove
- The Cove Condominiums
- The Dakota
- The Dalston
- The Dillon
- The Dillon Buckhead
- The Edley Apartments
- The Elliot
- The Enclave
- The Enclave At Collier
- The Enclave on Collier
- The Enclave on Peachtree
- The Flats at Riverwalk
- The Frederica
- The Gardens Dunwoody Springs
- The Gates
- The Gates At Bouldercrest
- The Gates at Stone Lake
- The Giant Lofts
- THE GLENRIDGE
- The Grace Residences
- The Grafton
- The Grandview
- The Greystone at Vinings
- The Habersham Estate
- The Hammonds
- The Harman
- The Heights At Carver Hills
- The House At Phipps
- The Indie
- The Ivy’s
- The Ivys
- The Landings Dunwoody Springs
- The Landmark
- The Leon
- The Lindbergh Condominiums
- The Links
- The Lofts at 5300
- The Lofts At Reynoldstown Crossing
- The Lofts At The Belvedere
- The Manhattan
- The Manor House
- The Massellton
- the Meadows
- The Metropolitan
- The Moderns
- The Moderns at Sugar Creek Mill
- The Muses
- The Oaks at Buckhead
- The Overlook
- The Overlook at Briarcliff
- The Parc
- The Park at 5th
- The Park At Ashford
- The Park at East Paces
- THE PARK AT EMORY
- The Park At Vinings on the Chattahoochee
- The Park on Ivy
- The Parks @ Cascade
- The Peachtree Residences
- The Phoenix
- The Phoenix on Peachtree
- The Plaza At 14th Street Condos
- The Pointe
- The Ponce
- The Prescott at Park Place
- The Preserve at Lenox Park
- The Promenade at Northplace
- The Realm
- The Regency
- The Registry on the Park
- The Reid House
- The Reserve At City Park
- The Reserve at Wildwood
- The Residences At Studioplex
- The Reynolds
- The Richmond
- The Row
- The Row on Wylie
- The Roycraft
- The Sophia
- The Square at Glen Iris
- The St. James
- The Stacks
- The Summit
- The Summit at Peachtree Corners
- The Summit at Sandtown
- The Summit at Stonewall
- The Swift
- The Terraces At Peachtree
- The Towns at Old Fourth Ward
- The Trust at East Lake
- The Vanderbilt
- The Variations
- The View at Chastain
- The Views at Lenox Crossing
- THE VILLSGE OF OAKSHIRE
- The Virginian
- The W Residence
- The Washington
- The Waverly
- The Wellbourne
- The West Paces
- The Windsor Over Peachtree
- The Winston
- The Woodlands
- Thirty-Six Forty-Nine Peachtree
- Thomasville
- Thomasville Estates
- Thomasville Heights
- THOMASVILLE PARK
- THOMASVILLE URBAN REDEV AREA
- Thomasville Urban Redev Area S
- THORNTON WOODS
- Thornwood Park
- Three Lakes
- Three Points at Chosewood Park
- Timbers of Vinings
- Tip Top
- Toco Hills
- Tower on Piedmont
- TOWERGATE THAMES
- Towergate Twnhms
- Towne Maner
- Townegate
- Townegate Townhomes
- Townegate/Buckhead
- Townes at Asbury
- Townes at Chastain
- Townhomes At Candler Park
- Townhomes at Sandy Springs
- TOWNHOMES AT SANDYSPRINGS
- Townhomes of Sandy Springs
- townley place
- Towns at Druid Hills
- Towns at Monroe
- Towns of Crescent Park
- Townsend at Ashford Park
- Townsend At Chamblee
- Townsend at Lenox Park
- Townsend At Perimeter
- Townsend at Toco Hills
- Tremont
- Tribute Lofts
- Trillium
- Troy Peerless Lofts
- Tuscany
- Tuscany at Lindbergh
- Tuscany Condominiums
- Tuskegee Heights
- Tuskegee Heights Park South Sub
- Tuxedo Park
- Twelve Atlantic Station
- Twelve Centennial
- TWELVE Centennial Park
- Twelve Centennial Park Condos
- TWELVE MIDTOWN
- TWELVETH STREET COMMONS
- Twin Creeks Crossing
- Twin Heights
- Twin Lakes
- Twin Oaks
- Underwood Hill
- Underwood Hills
- Unincorp-Fulton
- Unincorporated DeKalb
- Unincorporated South Fulton County
- Union Xing
- Unit 04-B Kimberly
- United Lofts
- Urban Lofts Townhomes
- Urban Townhomes
- Urban Villa
- Urban Villa Sec 2
- Utoy Forest
- Utoy Hills
- Valley View
- Van Epps Prop
- Vannoy Park
- Variations
- VASSER WOOLEY PROP
- Venetian Hills
- Venitian Hills
- Venue Brookwood
- Verbena Sub
- Verge Apartments
- VERMONT ESTATES
- Vertical Row
- Victoria Estates
- Victoria Heights
- Victory at Summerhill
- Vienna Woods
- View at Chastain
- Viewpoint
- Views @ O4W
- Views at Lennox
- Views at Lenox Crossing
- Views At O4W
- Villa at Buckhead Heights
- Villa Homes
- Villa Sonoma
- VILLA SONOMA AT PERIMETER SUMMIT
- Villa Sonoma Condominiums
- Village at Lenox Park
- Village at Park Place
- Village Creek
- VILLAGE CREEK LANDING
- Village East Atlanta
- Village Oaks
- Village Place Brookhaven
- Village Stacks
- Villages at Cascade
- Villages at East Point
- Villages at Kirkwood
- Villages at Oakshire
- Villages Cascade
- Villages Oakshire
- Villages of Cascade
- Villages of Oakshire
- Villages/Oakshire
- Villages/Sandtown Center
- Villas on Briarcliff
- Vine City
- Vine City / English Avenue
- Vine City/ Vine City
- Vinings
- Vinings Central
- Vinings central Condos
- Vinings Chase
- Vinings Chase Condos
- Vinings Ferry
- VININGS GATEWAY CITY HOMES
- Vinings Lofts and Apartments
- Vinings Main
- Vinings On The Chattahoochee
- Vinings Orchard
- Vinings Overlook
- Vinings View
- Vinings View Condominium
- Vinings View Condominiums
- VININGS VIEW CONDOS
- Vinings Vineyard
- VIO
- Virginia Hall
- Virginia Highland
- Virginia Highlands
- Virginia Highlands/Druid Hills
- Virginia Higland
- Virginia Hill
- Virginia Manor
- Virginia Park
- Virginia-Highland
- Viringia Highland
- W
- W Atlanta Residences
- W B Johnson
- W B Johnson Jr
- W D Cameron Prop
- W L Moore
- W Residences
- Waits
- WAITS DRIVE
- WAKEFIELD FOREST
- Walden
- WALDEN ON LENOX
- Walden Park
- Waldorf Astoria
- Waldorf Astoria Residences
- Walker Park
- Walter C Hendrix Sub
- Ware Estates
- Washington Ave
- Washington Park
- Washington Sqare
- Washington Square
- Washington Square #1 Ph 1
- Washington Way Phase 1
- Water Tower Stacks
- Waterford
- Waterford Commons
- Waterford on Piedmont
- Waterside at Peachtree
- Waterworks
- Waterworks Howell Mill
- Waverly Park
- Waverly Park East
- Weatherstone
- Weatherstone At LaVista
- Webster Dev Co Inc Prop
- Webster Dev Co Sec 05
- Welch
- Welch Prop
- WELLBOURNE
- Wellesley Estates
- Wellington Buckhead
- Wellington Buckhead Condominium
- Wellpointe At Niskey Lake
- Wells
- Wells Prop
- West End
- West End Heights
- West End Park
- West Highlands
- West Lake
- West Lake Acres
- West Lake Heights
- West Lake Manor
- West Manor
- West Midtown
- West Paces
- West Town
- West View
- West Wesley Townhome
- Westbridge Heights
- Westbury At Vinings
- Westchase Glen
- Western Estates
- Westfair Coach Homes
- Westlake
- Westland Estates
- WESTMEATH PARK
- Westminister
- Westminster
- Westmont Estate/Oakland City
- Westmont Estates
- Westmont Estates Sub
- Westover Plantation
- Westover Woods
- Westridge
- Westridge Park
- Westside Bend
- Westside Bend at Proctor Creek
- Westside Station
- Westside Station Subdivision
- Westside Village
- Westview
- Westview Heights
- Westview Olympian Hills
- Westview Terrace
- Westwood
- Westwood Terrace
- Wet End Heights
- Wexford
- Wexwood Glen
- WF Brown
- Whatley & Charlesons
- Whetstone Cove
- Whisper Creek
- WHISPERING HILLS
- White Oak Hills
- White Provision
- White Provisions
- Whitefoord Townhomes
- Whitehall Forest East
- Whitetaker
- Whitner Estates
- Whittier Mills
- Wieuca hills
- Wieuca Overlook
- Wieuca Park
- Wilburn House
- Wildcliff Estates
- WILDWOOD
- Wildwood Forest
- Wildwood Lake Estates
- Wildwood Park Towne Houses
- William Court
- William E. Sims Estate Sub
- William Oliver
- Williams Bluff
- Williams Bluff Sub
- WILLIAMSBURG
- Williamsburg Park
- Willis M Everette Prop
- Willow Glen
- Willowbrook Estates
- WIlson Estates
- Wilson Hill Meadows
- Wilson Mill Meadows
- Wilson Mill Meadows Sub Unit2
- Windhaven
- Winding River Village
- Winding River Village Condominium Comple
- Windsor at Peachtree
- Windsor Forest
- Windsor Forrest
- Windsor Over Peachtree
- Windwood Forest
- WINGFIELD
- Winter Hill 03
- WINTERCREST
- Winterhill
- Winters Chapel Hills
- Winthrop Manor
- Wl James Jr
- Wolf Creek Chase
- Wolf Creek Country Club
- Wood Knoll
- Wood Valley
- Wood Valley Court
- Woodcliff
- Woodland
- Woodland Estates
- Woodland Forest
- Woodland Heights
- woodland hill
- Woodland Hills
- Woodland Hills Subdivision
- WOODLAND HILLS/ORMEWOOD PARK
- Woodland Preserve
- Woodland View Estates
- WOODLANDS
- Woodlands Hills
- Woodlawn Estates
- Woodside Hills
- Woodson Park
- Woodward
- Woodward Estates
- Woodward Hills
- WRENS CROSS
- Wyncreek Estates
- WYNCREEK ESTATES PH 02
- Wyndham Hills
- WYNGATE AT SPALDING
- Wynns Work
- Wynterhall
- x
- Yorketowne Place
- Yorkshire Townhomes
- YORKTOWNE
- YORKTOWNE PLACE
- Young Acres
- Zephyr
Market Summary
Current real estate data for Single Family in Atlanta as of Jan 13, 2026
2,299
Single Family Listed
99
Avg DOM
259
Avg $ / SqFt
$755,823
Avg List Price
Property Summary
- Located in the Chastain Park subdivision, 4220 Exeter Close NW Atlanta GA is a Single Family for sale in Atlanta, GA, 30327. It is listed for $1,850,000 and features 4 beds, 5 baths, and has approximately 0 square feet of living space, and was originally constructed in 1965. The average price per square foot for Single Family listings in Atlanta is $259. The average listing price for Single Family in Atlanta is $755,823.
Similar Listings Nearby

4220 Exeter Close NW
Atlanta, GA












































































