Welcome to Ball Ground, Georgia! This custom-built 5 bedroom, 3.5 bathroom ranch on a finished daylight basement sits on 5.95 acres and offers the perfect balance of space, privacy, and convenience.
Built in 2015, the home features a split-bedroom design with the master suite, laundry, and half bath on one wing, and two spacious bedrooms with a full bath on the other. The open kitchen overlooks the vaulted great room, making it the heart of the home for gatherings and entertaining. There is also potential to finish a room above the garage for even more living space!
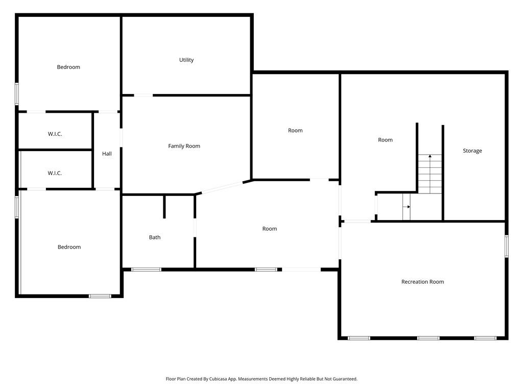
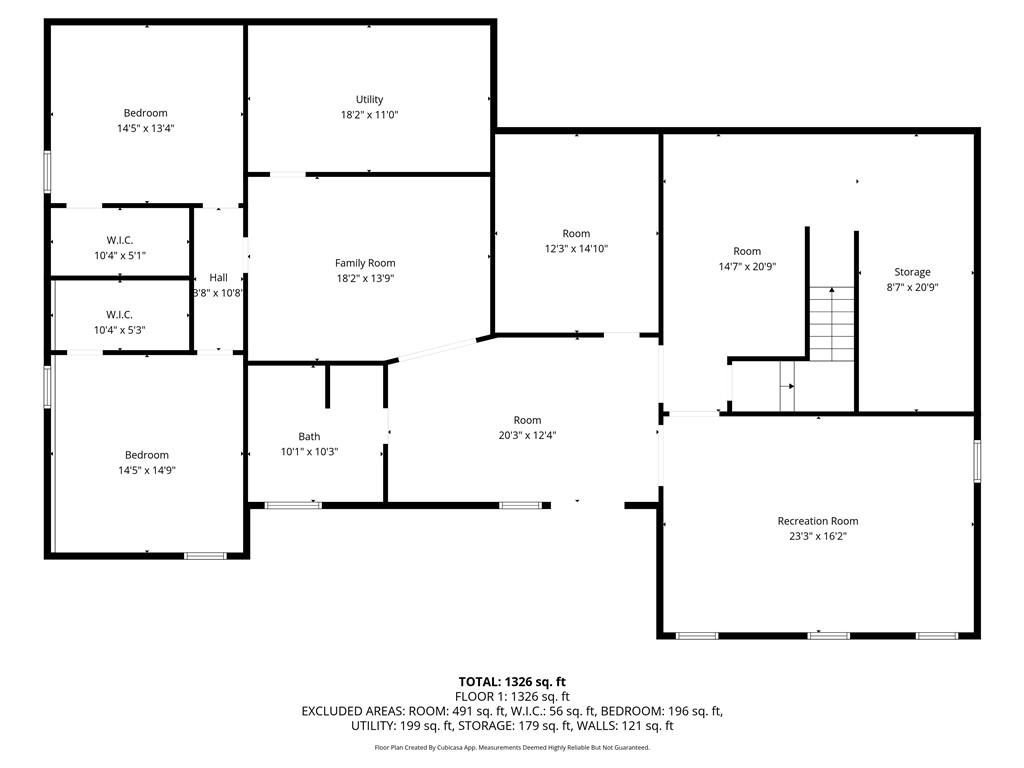
The finished basement adds incredible versatility with two additional bedrooms, a full bath, a large living room, and a home office—perfect for multigenerational living, guests, or a private workspace.
Outdoor living shines with a rocking chair covered front porch, a large back deck that’s half covered and half uncovered, plus a screened patio area underneath. The fenced backyard is ideal for pets, play, or future expansions. The property itself combines open usable yard space with hardwoods in the back, giving you room to garden, ride, hike, or hunt right at home.
A true standout feature is the 35’x55’ (1,925 sq. ft.) three-bay shop, built in 2018 with 12’x12’ roll-up doors, water, and power—ideal for a workshop, home business, or storage for RVs, boats, and toys.
All of this with no HOA, county-only taxes, and walking distance to downtown Ball Ground, yet only minutes from shopping, dining, wineries, and I-575 for easy commuting.
Peaceful country living with room to spread out—right where you want to be!
Built in 2015, the home features a split-bedroom design with the master suite, laundry, and half bath on one wing, and two spacious bedrooms with a full bath on the other. The open kitchen overlooks the vaulted great room, making it the heart of the home for gatherings and entertaining. There is also potential to finish a room above the garage for even more living space!
The finished basement adds incredible versatility with two additional bedrooms, a full bath, a large living room, and a home office—perfect for multigenerational living, guests, or a private workspace.
Outdoor living shines with a rocking chair covered front porch, a large back deck that’s half covered and half uncovered, plus a screened patio area underneath. The fenced backyard is ideal for pets, play, or future expansions. The property itself combines open usable yard space with hardwoods in the back, giving you room to garden, ride, hike, or hunt right at home.
A true standout feature is the 35’x55’ (1,925 sq. ft.) three-bay shop, built in 2018 with 12’x12’ roll-up doors, water, and power—ideal for a workshop, home business, or storage for RVs, boats, and toys.
All of this with no HOA, county-only taxes, and walking distance to downtown Ball Ground, yet only minutes from shopping, dining, wineries, and I-575 for easy commuting.
Peaceful country living with room to spread out—right where you want to be!
Property Details
Price:
$1,089,900
MLS #:
7659077
Status:
Active
Beds:
5
Baths:
4
Type:
Single Family
Subtype:
Single Family Residence
Listed Date:
Oct 2, 2025
Total Sq Ft:
2,645
Year Built:
2015
See this Listing
Schools
Elementary School:
Ball Ground
Middle School:
Creekland – Cherokee
High School:
Creekview
Interior
Appliances
Microwave, Refrigerator
Bathrooms
3 Full Bathrooms, 1 Half Bathroom
Cooling
Ceiling Fan(s), Central Air, Electric
Fireplaces Total
1
Flooring
Hardwood
Heating
Forced Air, Natural Gas
Laundry Features
Laundry Room, Other
Exterior
Architectural Style
Ranch
Community Features
Near Schools, Near Shopping
Construction Materials
Cement Siding
Exterior Features
Private Yard, Other
Other Structures
Outbuilding, Workshop
Parking Features
Driveway, Garage
Parking Spots
2
Roof
Composition
Security Features
Fire Alarm, Smoke Detector(s)
Financial
Tax Year
2024
Taxes
$6,809
Map
Community
- Address256 Cartersville Street Ball Ground GA
- SubdivisionN/A
- CityBall Ground
- CountyCherokee – GA
- Zip Code30107
Subdivisions in Ball Ground
- 5 Acre Private Estate
- 5.13
- Ball Ground
- BROCKINGTON FARMS
- Cherokee Gold Acres
- Cherokee Hills
- Cherokee Village
- Cherokee Woods
- Creek Wood Park
- Creekside at Farmer’s Crossing
- Creekside at Farmers Crossing
- Creekside Estates
- Dawson Creek
- EAGLE NEST RIDGE
- Etowah Trails
- Farms at Harrington Hills
- Goss Estates
- Hawkins Farm
- Hawks Ridge
- HERITAGE OAKS
- Heritage Plantation
- Heritage Woods
- HIGHLANDS AT SHARP MOUNTAIN
- Hightower Lake
- Hightower Lake Estates
- Historic Ball Ground
- Hollytrace
- Ivy Meadow
- Lantern Walk
- Latham’s Mill
- Lathems Mill
- Laurel Lake
- Lawson Landing
- Lions Gate at Ball Lake
- Lynwood
- Malone’s Pond
- Marble Hill
- Marble Tree
- Mark Tanner
- Mountain Brooke North
- None – 10.18 acres zoned AG
- None – 2 acres
- None – 3.68 Acres
- None – 4.94 Acres
- NONE NO HOA
- Oaks at Yellow Creek
- Pooles Mill
- Preserve at Howell Bridge
- Preserve at Long Swamp Creek
- Riders Field
- RIDGE VIEW ESTATES
- River Hill
- River Rock
- ROBERT E APPLING & BETH APPLING
- Ryman At Farmers Crossing
- Sanctu-aire
- Sanctuaire Farms
- Sawgrass
- SETTLERS RIDGE
- Smithwick Crossing
- Stratford Hills
- The Estates at Sharp Mountain
- The Estates at Sharp Mountain Creek
- The Heritage at Farmer’s Crossing
- The Highlands at Sharp Mountain
- THE OAKS AT YELLOW CREEK
- The Preserve at Etowah
- The Preserve at Long Swamp Creek
- The Ridge
- The Tate Reserve
- Valley Park
- West Wind
- Wild Turkey Creek
- Winchester Oaks
- Woodhaven Bend
- Worley Estates
Market Summary
Current real estate data for Single Family in Ball Ground as of Nov 22, 2025
156
Single Family Listed
87
Avg DOM
236
Avg $ / SqFt
$862,133
Avg List Price
Property Summary
- Located in the N/A subdivision, 256 Cartersville Street Ball Ground GA is a Single Family for sale in Ball Ground, GA, 30107. It is listed for $1,089,900 and features 5 beds, 4 baths, and has approximately 0 square feet of living space, and was originally constructed in 2015. The average price per square foot for Single Family listings in Ball Ground is $236. The average listing price for Single Family in Ball Ground is $862,133.
Similar Listings Nearby

256 Cartersville Street
Ball Ground, GA



























































